国内高端膜结构制造商
关于我们
|
新闻动态
|
联系我们
English
中国空间结构协会理事单位
膜结构工程总承包特级(设计、制作、安装)资质,钢结构工程二级资质
进入官网
www.zgwhmjg.com
业务洽谈:
13175192529
开云(中国)官方
走进万豪
万豪简介
发展历程
办公环境
工厂环境
荣誉资质
企业文化
团队活动
员工学习
工程案例
膜结构商业设施
膜结构交通设施
膜结构体育设施
膜结构文化设施
膜结构景观设施
膜结构工业设施
新闻动态
公司动态
行业资讯
招贤纳士
联系我们
联系我们
版权声明
公司动态
行业资讯
开云(中国)官方
>>
新闻动态
>>
公司动态
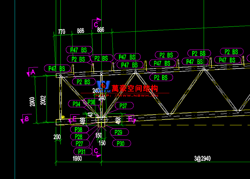
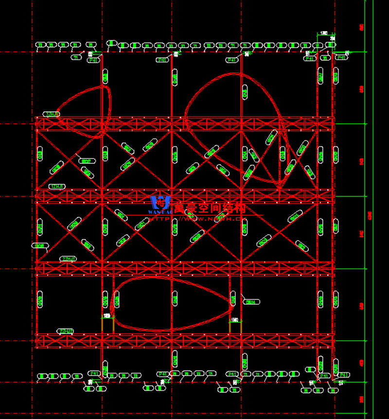
湖州西南小学文体中心管桁架屋顶加工项目
时间:2019-08-21 00:19:31
浏览数:
近期,万豪空间结构承接了一个钢结构加工的项目,那就是湖州西南小学文体中
心管桁架屋顶加工项目。
该项目用钢量60多吨,桁架跨度35.2米,主桁架高度2米,腹杆斜撑2.2米。
目前已开始加工,大家可以欣赏一下。
?
除非注明,以上信息均由
万豪空间结构
提供,转载请注明出处:
http://www.jptic.com{dede:field.arcurl}{dede:field.vote/}
东邦药业膜结构工程施工中
印尼码头膜结构项目技术交流会
相关资讯
光影下的膜结构天幕,美的让人悸动!
赛车场干拔沙坡钢膜结构雨棚 恭喜比亚迪赛车场打破两项吉尼斯世界纪录
技能之光闪耀中原:第三届全国技能大赛在郑州开赛
第三届全国职业技能大赛正在火热进行中!
技能之光 闪耀中原
陕西省建筑装饰协会幕墙门窗分会第二届理事会暨会员代表大会召开,膜结构技术引发关注与讨论
膜结构建筑展示, 一起领略各类膜结构“风景”
承载世博梦想,再获瞩目焦点——武契奇官宣+成龙代言
郑州中原国际会展中心抢工进度展示!
ETFE膜结构:绿色建筑的节材典范
◆
◆
扫一扫上面的二维码图案,加我微信
开云中国有限公司官网
|
星空体育·(中国)官方网站
|
江南手机网页版登录入口
|
开云手机入口
|
亚新网站
|
星空体育网页版登录入口
|
开云直播中心官网
|
亚新官方官网(中国)集团有限公司
|
米兰平台
|